Selling your Home?


Contact us and we will be in contact so we can prepare a marketing plan that will have your property ready to sell in no time!

Get in touch with our team for more information...


Properties for Sale in Bream Bay, Northland


LOOKING FOR YOUR DREAM HOME?


$839,000  

ID #3910


4
2
2

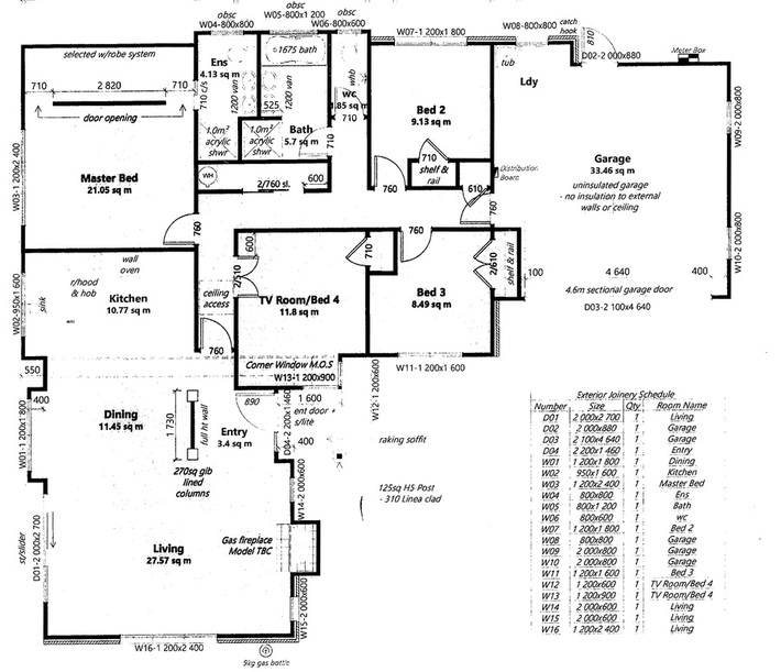
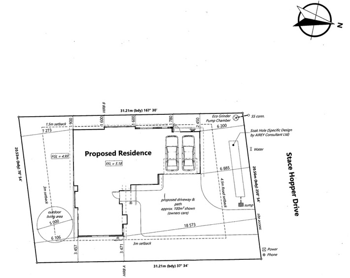
This is being built on Stace Hopper Drive in the sought after Marsden Cove subdivision.

The builders have been instructed to start in February with the completion expected July/August. Brick and Linear, top quality interior fit out with the kitchen having granite bench tops, walkin pantry, white cabinetry, stainless steel appliances including dishwasher, rangehood, oven, cooktop, waste disposal, bathroom with double vanity, quality tiles and carpets throughout.

There’s four good size bedrooms (or three plus a family room), master bedroom with ensuite, separate dining and a nice big lounge with a gas fireplace.

The exterior will have the concrete driveway, patio’s and footpaths and the grounds will be levelled, and yes there’s room for the boat and the camper, just bring the furniture and move in.

Stroll to the Marina for lunch, or pop over the road for a swim, life doesn’t get much better.

15% deposit will secure this home with the remainder on settlement. The quality will not be comprised, the specs are high and the price is low. $839,000.00!!!!!

Address & Map


LOT 197 Stace Hopper Drive
One Tree Point
Northland

Features


Bedrooms
4
Bathrooms
2
Garages
2
Land Area
637 sqm
Building Area
185sqm

Joanne Dewson

Mobile: 021 780 622
Work: 09 433 0300
A/Home: 021 780 622
Fax: 09 433 0301
Email: [email protected]

Back